CASAS?... COMIGO! Alfredo Germano - Mediação Imobiliaria Unip., Lda

facebook

  919 395 527 (Chamada p/ rede móvel nacional)

  alfredo.germano@gmail.com

Venda Terreno Urbano

Foto do imóvel

Descrição

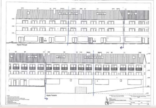
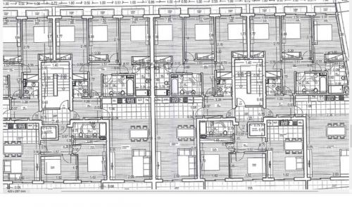
Dois lotes com projecto aprovado e pronto a iniciar, para 8 xT3, 4 xT2 e 4xLojas. Podemos vender ou permutar por apartamentos

  • Referência: AGP-1457 - 1778
  • Negócio: Venda
  • Tipo de Imóvel: Terreno Urbano
  • Tipologia: Não Definido
  • Ano: 0
  • Distrito: Bragança
  • Concelho: Mirandela
  • Localidade: Mirandela
  • Área Útil: 1000 m²
  • Área do Terreno: 0 m²
  • Preço: Sob Consulta
  • Classificação Energética: N/A

Pedido de Visita

  • * Campos de preenchimento obrigatório